Te Huur / Te Koop
Bedrijfspand bestaande uit bedrijfsruimte met kantoorruimte gelegen op zeer gunstige locatie in Amersfoort.Inleiding
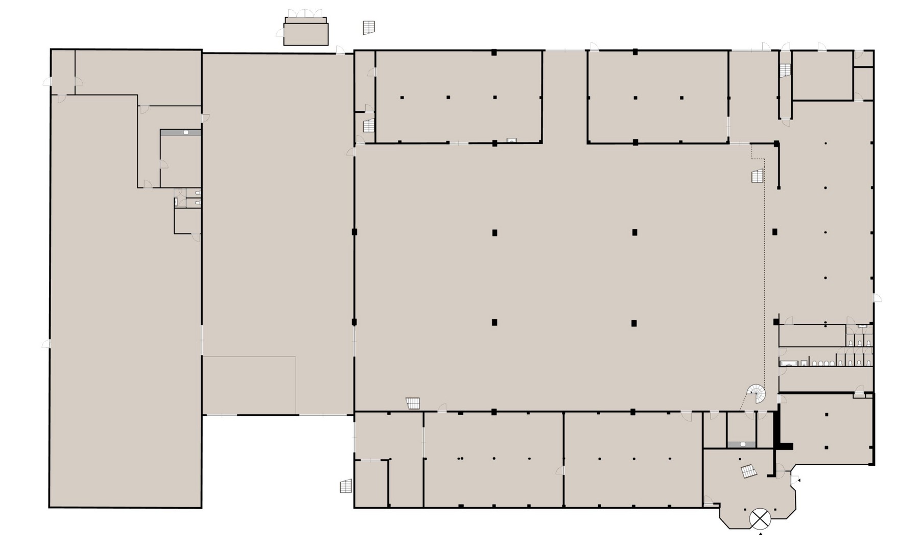
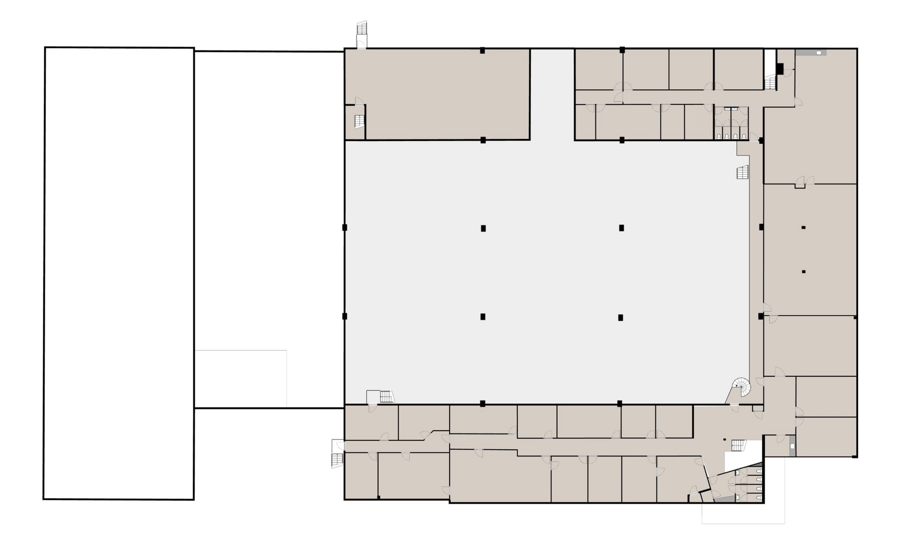
Op bedrijventerrein de Isselt in Amersfoort bieden wij, zowel te huur als te koop, een bedrijfsobject aan, welke gelegen is op een goed bereikbare locatie met uitstekende ontsluiting. Het object betreft een vrijstaand bedrijfsgebouw met een totaal vloeroppervlak van circa 5.380 m², verdeeld over bedrijfsruimte en kantoorruimte, gelegen op een perceel van 5.513 m² eigen grond. Het gebouw biedt ruimte voor moderne bedrijfsvoering of creatieve inrichting – uiteenlopende opties van werkruimte tot showroom of evenementenlocatie.Interesse? Bel snel voor het inplannen van een bezichtiging!
Ligging
Het object is gelegen op bedrijventerrein de Isselt. De Isselt is een dynamisch en veelzijdig bedrijventerrein aan de westzijde van Amersfoort, waar ondernemerschap en bereikbaarheid samenkomen. Dankzij de strategische ligging nabij de Stadsring en de aansluiting op de A1 en A28 is de Isselt uitstekend bereikbaar, zowel voor lokaal als (inter)regionaal verkeer. Ook het openbaar vervoer is goed geregeld, met bushaltes op loopafstand en het NS-station Amersfoort Centraal is de locatie binnen tien minuten bereikbaar.De directe omgeving kenmerkt zich door een mix van productiebedrijven, dienstverleners, groothandel en creatieve ondernemingen. Door de voortdurende gebiedsontwikkeling ontstaat er een moderne, toekomstbestendige werkomgeving met ruimte voor groei, innovatie en duurzaamheid.
Of je nu zoekt naar een vestigingslocatie voor logistiek, ambacht, lichte industrie of creatieve bedrijvigheid: De Isselt biedt een stevige basis voor je onderneming, in een stad die bruist van de economische kansen.
Oppervlakte
Totale bruto vloeroppervlakte bedraagt 5.380 m², welke als volgt is verdeeld:Kantoorruimte begane grond circa 178 m²
Bedrijfshal begane grond circa 3.812 m²
Kantoorruimte 1e verdieping * circa 1.420 m²
* Een gedeelte van de kantoorruimte is om te bouwen naar bedrijfshal.
Opleveringsniveau
In de huidige staat, met onder andere de navolgende voorzieningen:• Airco;
• Toiletten;
• Verwarming;
• Verlichting;
• Pantry;
• Meerdere overheaddeuren;
• Betonvloer;
• Krachtstroom;
• Alarm met zonebewaking.
Parkeren
Op eigen terrein zijn meerdere parkeerplaatsen gesitueerd. Tevens is op de Isselt het parkeren (grotendeels) gratis.Voorwaarden Huur
Huurprijs
€ 32.000,00 per maand, te vermeerderen met BTW.Servicekosten
Een verrekenbaar voorschot van € 1.000,00 per maand (nacalculatie) , te vermeerderen met btw en heeft onder ander betrekking op:• Onderhoud tuin / terrein / parkeerplaatsen;
• Onderhoud en periodieke controle C.V. installatie;
• Onderhoud en periodieke controle overheaddeur;
• Onderhoud buitenverlichting;
• Ongediertebestrijding;
• Schoonhouden van daken en goten;
• Glasbewassing;
• Schoonmaak gevel (niet beglazing);
• Onderhoud en periodieke controle brandslanghaspels of blussers;
• Herstel inbraakschade;
• Glasverzekering;
• Administratiekosten ad. 5% over de vergoeding van leveringen en diensten.
Betaling
Per maand, vooruit te betalen.Huurperiode
Voorkeur 5 jaar + 5 jaar, maar andere huur-en/of verlengingsperiode(n) zijn bespreekbaar.Omzetbelasting
Er is sprake van een BTW-belaste verhuur.Huurprijsaanpassing
Jaarlijks op 1 januari, op basis van de wijziging van het maandprijs-indexcijfer volgens de consumentenprijsindex (CPI) reeks CPI-huishoudens algemeen (2015 = 100), gepubliceerd door het Centraal Bureau voor de Statistiek (CBS).Garantiestelling
Bankgarantie of waarborgsom ter grootte van drie maanden betalingsverplichtingen wel bestaan uit: huur, servicekosten en de verschuldigde btw.Huurovereenkomst
De te sluiten huurovereenkomst zal worden opgemaakt met als basis het model dat door de Raad voor Onroerende Zaken (ROZ) op 30-1-2015 is vastgesteld – waarbij artikel 4.5 in april 2024 is aangepast – en op 8 april is gedeponeerd bij de griffie van de rechtbank te Den Haag en aldaar ingeschreven onder nummer 10/2024 tevens gepubliceerd op de website met aanvullende bepalingen door verhuurder.Voorwaarden Koop
Vraagprijs
€ 4.500.000,00 kosten koper.Omzetbelasting
Er is geen sprake van een BTW-belaste verkoop.Datum Overdracht En Notaris
Datum van overdracht en notariskantoor nader overeen te komen.Kadastrale Aanduiding En Perceelgrootte
Chromiumweg 7Gemeente: Amersfoort
Sectie: D
Nummers: 11357
Groot: 3.661 m²
en
Magnesiumweg 1
Gemeente: Amersfoort
Sectie: D
Nummers: 10476
Groot: 1.852 m²
Tezamen: 5.513 m²
Garantstelling
Bankgarantie/waarborgsom ter grootte van 10% van de koopsom, te voldoen uiterlijk 4 weken na koopovereenstemming te voldoen op derdengeldrekening van praktiserend notaris.AS IS, WHERE IS
Koper accepteert het in de staat waarin het zich bevindt, inclusief alle zichtbare en onzichtbare gebreken, lasten en beperkingen, behoudens opzet of bewuste verzwijging van de verkoper.
Verkoper geeft geen garanties af ten aanzien van de staat van onderhoud, (milieu)technische aspecten, aanwezigheid van verontreiniging, installaties, of geschiktheid voor het door koper beoogde gebruik.
Koper vrijwaart verkoper uitdrukkelijk voor alle aanspraken van derden en/of overheidsinstanties die voortvloeien uit of verband houden met de feitelijke staat van het verkochte.
Koper heeft (eventueel) de gelegenheid om het verkochte, inclusief de bodemgesteldheid, (milieu)technische aspecten, juridische status en publiekrechtelijke beperkingen, te (laten) onderzoeken.
Voorbehoud
Eventuele transacties dienen ter goedkeuring voorgelegd te worden aan opdrachtgever c.q. eigenaar van het gebouw. Tot deze goedkeuring verleend is, zijn alle uitgebrachte aanbiedingen geheel vrijblijvend.Meer Informatie
Voor nadere informatie en/of bezichtigingen kunt u een afspraak maken met:Schipper Bosch
Basicweg 7, 3821 BR Amersfoort
Telefoon: 033 456 23 63