Te Huur
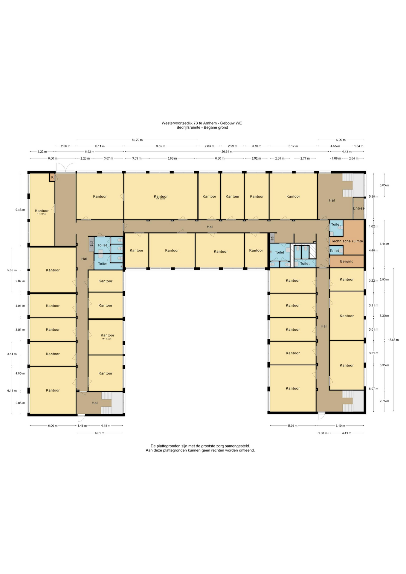
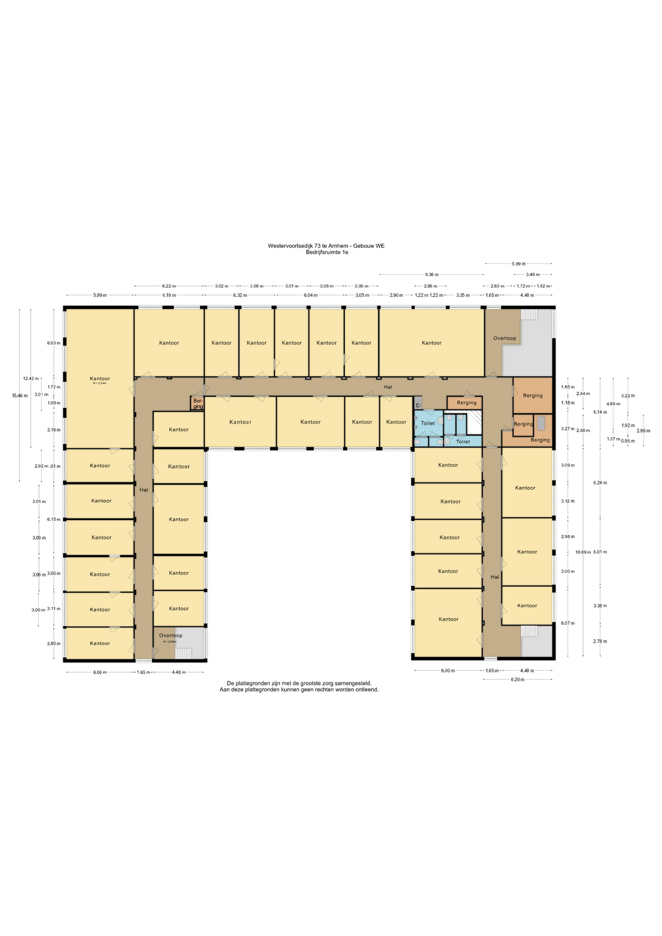
Gebouw WE, met een oppervlakte van 1928 m2, is gevestigd aan de voorzijde (Noordzijde) van Cleantech Park Arnhem en werd gebouwd rond 1995 in een U-vorm. Het biedt een verscheidenheid aan ruimtes aan beide zijden van de gangen, waar individueel of met een groep medewerkers kan worden gewerkt.Sommige ruimtes zijn met elkaar verbonden door deuropeningen. Daarnaast zijn er grotere vergaderruimtes beschikbaar voor bijeenkomsten met meerdere personen. Alle ruimtes zijn uitgerust met airconditioning en screens, die zorgen voor een optimaal werkklimaat.
Het gebouw beschikt over drie trappenhuizen en een goederenlift. Op zowel de begane grond als de eerste etage zijn pantry’s aanwezig, evenals verschillende toiletgroepen en een mindervalide toilet. Parkeren is mogelijk in de nabijheid van het pand, en er is ook een laadplein voor elektrische auto’s in de buurt. Het gebouw wordt in de huidige staat opgeleverd.
Ligging En Bereikbaarheid
De locatie is zowel met eigen- als openbaar vervoer goed bereikbaar. Cleantech Park Arnhem is gevestigd aan de rand van Arnhem nabij de uitvalswegen N325 en A12. Naast het park is een bushalte aanwezig. Er is voldoende parkeergelegenheid op het park.Oppervlakte
In totaal betreft het pand 1928 m2. Waarvan ca. 962 m2 gelegen op de begane grond en circa 966 m2 gelegen op de eerste verdieping.Vloerbelasting
Het pand heeft een vloerbelasting van 250 kg/m².Opleverniveau
Het pand wordt in de huidige staat opgeleverd.Aanvaarding
In overleg.Huurprijs
De huurprijs bedraagt in totaal € 10.850,00 per maand, exclusief de utilities.Huurbetaling per maand.
Huurtermijn
In overleg.Servicekosten
De servicekosten bedragen € 9.640,00 per jaar. Dit houdt in € 5,00 per m2 per jaar, exclusief de utilities. De servicekosten omvatten:• Onderhoud en periodieke controle casco ingebouwde installaties;
• Onderhoud en periodieke controle brandslanghaspels;
• Klein dagelijks onderhoud algemene ruimten;
• Onderhoud buitenverlichting;
• Onderhoud en schoonmaak daken en goten;
• Naamsaanduiding zuilen en bewegwijzering op het park;
• Glasbewassing buitenzijde gebouw, twee (2) keer per jaar;
• Schoonmaak gevel (niet beglazing);
• Administratiekosten ad. 5% over de vergoeding van leveringen en diensten.
De huurder dient voor het gebruik van utilities, zoals gas, water en elektra, zelf een leveringsovereenkomst te sluiten met Veolia op ons park. Zij verzorgen alle utilities.
Parkmanagement
De kosten voor parkmanagement bedragen € 11.568,- per jaar. Dit houdt in € 6,- per m² per jaar, exclusief de utilities. Onder parkmanagement valt:• 24/7 beveiliging op het park;
• Receptie tijdens kantooruren bij de hoofdentree van het park;
• Toegangscontrole en registratie;
• Laadmogelijkheden elektrische auto’s;
• Weegbrug;
• Gladheidsbestrijding wegen;
• Onderhoud terrein algemeen gebruik;
• Sportmogelijkheid;
• Aanwezigheid van kleedruimte en douches;
• Aanwezigheid van het parkrestaurant en cateringsmogelijkheden op locatie;
• Aanwezigheid van diverse vergader- en evenementruimtes;
• Aanwezigheid van een technische dienst tijdens kantooruren.
Huurprijsaanpassing
Jaarlijks, per 01 januari, op basis van de wijziging van het maandprijs-indexcijfer volgens de consumentenprijsindex (CPI) reeks CPI-huishoudens algemeen (2015= 100), gepubliceerd door het Centraal Bureau voor de Statistiek (CBS).Omzetbelasting
Er is sprake van een BTW belaste verhuur.Garantstelling
Bankgarantie/waarborgsom ter grootte van een bruto betalingsverplichting van drie maanden huur inclusief alle componenten en BTW.Huurovereenkomst
De te sluiten huurovereenkomst wordt opgemaakt conform het ROZ model en aanvullingen van Cleantech Park Arnhem.INTERESSE?
Wil je meer informatie of een afspraak inplannen?
Neem contact op Marc Hiddink via 06 - 30 24 21 13.
Onderneem Op Cleantech Park Arnhem
Cleantech Park Arnhem is dé locatie voor bedrijven die actief zijn in cleantech (Energie- en Milieutechnologie). Het 90 hectare grote park biedt een dynamische omgeving voor ondernemingen die zich richten op de energietransitie en circulaire economie. Gelegen in een stad die duurzaamheid hoog in het vaandel heeft staan, vormt het park een ecosysteem dat bedrijven ondersteunt om sneller en succesvoller te innoveren.Cleantech Park Arnhem brengt startups, scale-ups en multinationals samen en stimuleert groei door inspirerende events, de creatieve en historische omgeving, en hoogwaardige voorzieningen. Daarnaast speelt samenwerking met onderwijsinstellingen en overheidsorganisaties een cruciale rol in het creëren van een vruchtbare voedingsbodem voor innovatie. De bedrijven die hier zijn gevestigd, werken aan de groene oplossingen van morgen.