Op korte afstand van de historische binnenstad van Amersfoort zijn tien stadswoningen gerealiseerd, ingebed in een bestaande buurt met monumentale panden. De woningen vormen samen een kleinschalig woonensemble binnen de stedelijke context.
De architectuur wordt gekenmerkt door variatie in dakvormen en gevelopeningen. Verschillen in maat en positionering van ramen zorgen voor een afwisselend gevelbeeld, waarbij iedere woning een eigen uitstraling heeft binnen het geheel.
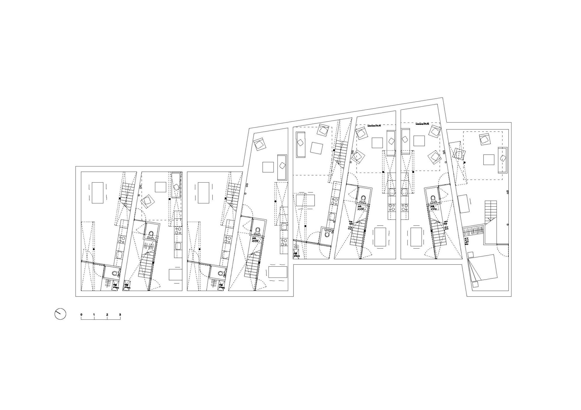
Ook in de plattegronden is variatie aangebracht. De woningen lopen in breedte uiteen, waardoor een waaierstructuur ontstaat. Deze opzet zorgt voor verschillende indelingen en ruimtelijke verhoudingen per woning. Tien woningen elk met een unieke plattegrond.
Het was het eerste project in de binnenstad van Amersfoort dat volledig gasloos is uitgevoerd. Verwarming en warm tapwater worden verzorgd door een warmtepompinstallatie.